¿Qué proyector comprar para oficina? ¿Qué marca de video beam es mas convienente? ¿La distancia afecta la calidad de proyeccion?
Seguramente te has puesto a pensar en estas preguntas a la hora de comprar un proyector para tu oficina, pero la verdad afectan mas factores como el tipo de sala de juntas donde se va a instalar, que tanta luz entra en esta... y otros factores que iremos comentando a lo largo de este post.
Así que hemos decidido brindarte una serie de recomendaciones y características que deberás tener en cuenta y te serán de gran utilidad al momento de adquirir el video proyector perfecto para tu oficina.
Tabla De Contenidos [Mostrar/Ocultar]
Contenido Del Articulo
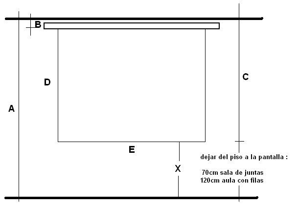
1.- El Tamaño De La Pantalla De Proyección
Con base en el espacio que tienes disponible para la pantalla de proyeccion te asesoraremos para saber cuál es el proyector adecuado para tu oficina. Por ejemplo:
En una oficina o sala de juntas donde la medida mas común del piso al techo es de 2.40 m, no es necesario adquirir un proyector de gran formato (porque la medida de tu "telón de proyección" no va a ser tan grande) entonces podrías optar por una pantalla de proyección de 2.03 x 2.03 m; este será el tamaño adecuado para realizar la proyección sin sobrepasar el espacio que tienes disponible.
2.- Tipo De Lente De Proyección
El lente es uno de lo componentes mas importantes de los proyectores y estos se clasifican en 2 tipos los cuales son:
Lente de tiro corto
Los
proyectores que poseen un lente de tiro corto son capaces de abarcar una gran
proyección a una muy corta distancia, comúnmente las referencias de estos proyectores de
video terminan en "st" lo que en inglés significa "short throw" (tiro corto), al tener
una distancia mínima para ser instalados si una persona camina por el frente de proyector
las sombras no van a captarse.
Lente estándar
Los proyectores que
son equipados con un lente estandar necesitan entre 2 y 4 metros para cubrir una pantalla
de gran tamaño, normalmente estos proyectores poseen un zoom manual el cual se puede
ajustar para variar la distancia de proyección.

3.- Distancia Disponible Para La Instalación
Todos los proyectores poseen una característica muy importante la cual se denomina relación de alcance, esta relación se conoce como, en cuanto mas alejado se encuentre el proyector de la pantalla de proyección la imagen será más grande, y viceversa, es decir entre más cerca este el proyector el tamaño de imagen será más pequeña.
La segunda característica tiene un nombre especial y una gama de proyectores que son denominados "proyectores de tiro corto". Debemos tener en cuenta las dimensiones de nuestra oficina para saber que proyector nos brindará una imagen perfecta según nuestro espacio de trabajo.
Precio Del Proyector EPSON EX3260
4.- Claridad de Luz vs Brillo de Proyección
Este punto probablemente es en el que debemos de tener más cuidado ya que tenemos que fijarnos en la cantidad de luz que ingresa a nuestra oficina o espacio, ya sea luz natural o luz artificial, porque a mayor claridad es necesario un proyector con mayor "lúmenes" y mayor contraste. Una forma de mejorar la calidad de la proyección es oscureciendo el espacio, ya sea apagando la luz o cerrando las cortinas.
A continuación se muestra una tabla que evalua las medidas de la pantalla de proyección con la cantidad de lumenes que necesita un proyector de video para una oficina.
| Tamaño De Pantalla | 70" 1.27 m de ancho |
100" 1.52 m de ancho |
120" 2.44 m de ancho |
150" 3.05 m de ancho |
|---|---|---|---|---|
| 2000 lumenes | Luz Baja | Luz Baja | Luz Baja | Luz Baja |
| 2500 lumenes | Luz Baja | Luz Baja | Luz Media | Luz Media |
| 3000 lumenes | Luz Media | Luz Media | Luz Media | Luz Media |
| 3500 lumenes | Luz Media | Luz Media | Luz Media | Luz Media |
| 4000 lumenes | Luz Media | Luz Media | Luz Media | Luz Media |
| 4500 lumenes | Luz Media | Luz Media | Luz Media | |
| 5000 lumenes | Luz Alta | Luz Alta |
5.- Cantidad De Conexiones
Todos los proyectores vienen integrados con las conexiones básicas de proyección como HDMI , VGA, USB, audio y video, etc. Antes de adquirir un proyector revisa la cantidad de conexiones que este tiene; porque debes comprar el proyector según la cantidad de puertos de conexión que tu requieras, ten en cuenta que al optar por un video beam con varias entradas de conexión el precio de este se elevará un poco.
¿Necesitas
Un Soporte Para Proyector?
6.- Marcas De Proyectores
En este punto es importante centrarse que cualquier marca de proyector puede funcionar para nuestra oficina, pero debemos recodar que algunas marcas ofrecen un plus extra que las hacen ser las mas reconocidas. A continuación te mostraremos algunas de las marcas mas especializadas en proyectores de video.
1.- Epson. (proyector EX3260 producto 2019 )2.- ViewSonic.
3.- Acer.
4.- Vivitek.
5.- NEC.
6.- Sonic.
7.- Casio.
Conclusiones Para Elegir Un Proyector Para Oficina
En conclusión, para elegir el proyector adecuado para tu oficina debes tener en cuenta los siguientes aspectos:
1. No olvides que el tamaño de la pantalla de proyección es muy importante y esta medida te será
muy útil para calcular la distancia de proyección.
2. Ten en cuenta el espacio de la sala de juntas y así podrás elegir el tipo de lente para
definir con mas exactitud el tipo de proyección a realizar (tiro corto, tiro estandar).
3. El brillo que emite el proyector debe ser mayor a la luz natural, para obtener una
imagen nítida.
4. Asegúrate que las conexiones que posee el proyector sean las que se adecuan a tu
necesidad.
